Waterfront Mini Hotel with a Yacht Club For sale New
Krašići, MontenegroProperty description
Mini Hotel and Yacht Club Development is located right on the coast of Krasici, providing sea views from all areas of the property.
The existing object is located on the waterfront, has a total size of 300m2, and all necessary documents for the reconstruction.
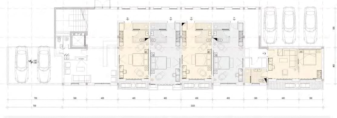
This Hotel is designed to have the style of a prestigious seaside residence. It is planned to have an accommodation area,- 5 units in total, a restaurant, a special area for the yacht club, and a place for renting yachts.
The special exclusivity of this object is reflected in the usage of the beach – Ponta of 500m2, exclusively for hotel guests and club members, with direct access from the sea.
The location of Krasici is hidden inside the Bay and its position is sheltered from the direct impact of the sea waves from the open sea. Krasici is a popular tourist destination with a large number of foreign investments. In the immediate vicinity of the location, there is an exclusive tourist complex with a beach of the famous Nikki Beach brand.
Mini Hotel and Yacht Club development is located near Tivat airport, less than 6km away.
More property details
- Intent: For sale
- Rooms: 0-0
- Bathrooms: 0-0
- Type of a property: Land/Project/Ruin
- Status: /
- Furnished: /
- Property size: 640 m2
- Plot area: 0 m2
- Region: Tivat region
- City/town: Krašići








